Модульная гостиница

Модульная гостиница - 1

О ПРОЕКТЕ

Проект разработан бюро архитектуры и дизайна Svoboda Group и реализуется на производстве модульных конструкций Novator.

Каждый номер гостиницы – это отдельный модуль. В сборке они формируют полностью автономное здание с собственными инженерными узлами. Технология позволяет точно контролировать качество на каждом этапе и сокращать сроки строительства без потерь в деталях.

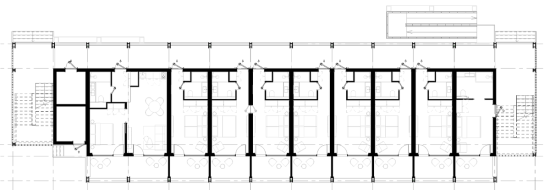
КОНСТРУКТИВНАЯ СХЕМА

Здание рассчитано на 20 номеров, расположенных на двух этажах. Производство ведётся на площадке Novator в Ленинградской области. Модули поставляются на участок с готовой отделкой, инженерными коммуникациями и сантехническим оборудованием. На территории отеля выполняется соединение модулей в единое здание.

Объект полностью автономен, оснащён собственными инженерными узлами. Технология обеспечивает предсказуемость сроков строительства и контроль качества на всех этапах производства.

АРХИТЕКТУРНЫЕ РЕШЕНИЯ

При разработке внешнего облика ставилась задача интеграции объекта в природное окружение. Верхний ярус отделан деревом, нижний — перфорированными металлическими панелями.

Фасадные рейки снижают визуальную нагрузку здания, делают его масштаб соразмерным человеку и окружающему ландшафту. Ритмический рисунок реек перекликается с вертикалями лесного массива. Без этого приёма геометрия здания воспринималась бы как тяжёлая и инертная.

Каждый номер оснащён собственным балконом. При ориентации здания на водные или лесные участки открываются виды, повышающие коммерческую привлекательность номеров.

НОМЕРНОЙ ФОНД

Предусмотрено два типа номеров:
— Стандарт площадью 21 м², ориентированный на индивидуальных путешественников и пары;
— Семейный номер площадью 44 м², предназначенный для семей с детьми или гостей, требующих увеличенного пространства.

АКУСТИЧЕСКИЙ КОМФОРТ

Для гостиничных объектов звукоизоляция относится к важным параметрам качества. В проекте применены усиленные конструктивные решения: межкомнатные перегородки и плиты перекрытий дополнительно изолированы многослойными акустическими панелями. Это исключает взаимное проникновение шума между номерами и обеспечивает комфортный отдых гостей.

ГИБКОСТЬ И АДАПТИВНОСТЬ

Проект обладает высокой степенью вариативности. Модульная технология позволяет адаптировать объект под конкретные условия участка и требования заказчика:
— увеличение количества номеров — путём добавления модулей;
— работа с узкими участками — сокращением ряда;
— изменение стилистики — заменой фасадных решений;
— нестандартная геометрия — изменением конфигурации сборки.

Такой подход снижает риски инвестора, связанные с привязкой типового проекта к конкретному участку, и даёт архитектору свободу в поиске оптимальных решений.

Модульные технологии в гостиничном сегменте остаются инструментом, потенциал которого раскрыт не полностью. Наш опыт демонстрирует, что сборное домостроение позволяет реализовывать объекты с качественной архитектурой, контролируемым бюджетом, предсказуемыми сроками и параметрами комфорта, соответствующими ожиданиям современного гостя.